A bright, dual-aspect (cross-ventilated) first-floor apartment is available for sale, located in the central square of the village of Kritsa. Even though the property is elevated at the front side, it is still considered ground floor from the entrance side, making access very easy since there are no stairs. The property is currently under full renovation, giving the future owner the opportunity to participate in the design process and choose final materials and finishes.
Main Features:
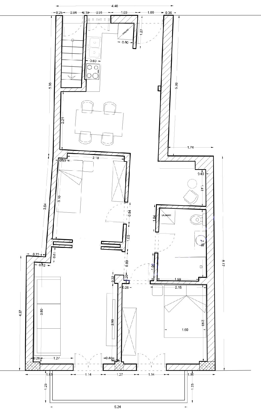
- Area: — 80sqm
- Rooms: 2 comfortable bedrooms
- Spaces: large living room, kitchen, bathroom
- Floor: 1st
- Condition: Fully renovated
- Orientation: Dual-aspect for natural light and ventilation
Property Description
The apartment is an ideal option for those seeking comfort, functionality, and immediate access to all points of interest in the village. Its central location on the square provides direct access to cafés, restaurants, supermarkets, and shops, making it suitable both as a permanent residence and as an investment property.
Renovation & Amenities
- The apartment is fully renovated.
- All water and electrical systems have been replaced. Including electrical panels and a water heater with a new solar panel.
- There are two air conditioners in the apartment with a 10-year warranty. One in the main bedroom 9000 BTU, and one in the living room 12000 BTU.
- New kitchen , not equipped.
- New bathroom.
- Lighted interior patio offering a dedicated area for relaxation and leisure, adding charm and extra value to the property.
- All lighting fixtures are installed.
- New flooring in the kitchen, patio and bathroom.
- The existing flooring in all other parts of the house and the balcony was treated and renewed.
Advantages
- Prime central location on the village square
- Dual-aspect apartment with excellent natural light
- Buyer’s ability to influence final design choices
- Delivered fully renovated
- Ideal for residence or investment (e.g., Airbnb)
- There is the option to use the rooftop, offering an excellent choice given the unobstructed view it provides.

































