An exceptional opportunity to acquire a prime plot with approved building permit and a refined contemporary villa project, located on an elevated hillside in Likotinara, within the prestigious Apokoronas region of Chania, Crete.
Land Details
- Land area: 4,830.35 m²
- The plot is naturally landscaped with centuries-old olive trees and cypresses offering authenticity, privacy, and a strong connection to the Cretan landscape.
- The own garden has about 30 olive trees.
- The elevated position provides open sea view from the 1st floor of the house.
- The surrounding area is known for premium neighboring residences owned by international entrepreneurs, forming a discreet VIP residential enclave.
- Is remoted from the dense village setting.
- All constructions in progress (that can be seen from drone photos) have been successfully finalized and the plot has prestigious neighbors on both sides.
Approved Building Permit
The property is sold with a fully approved building permit for a modern two-level villa with the basement, which was meticulously designed by the team of experienced engineers.
The project was carefully integrated into the natural slope of the land and surrounding flora.
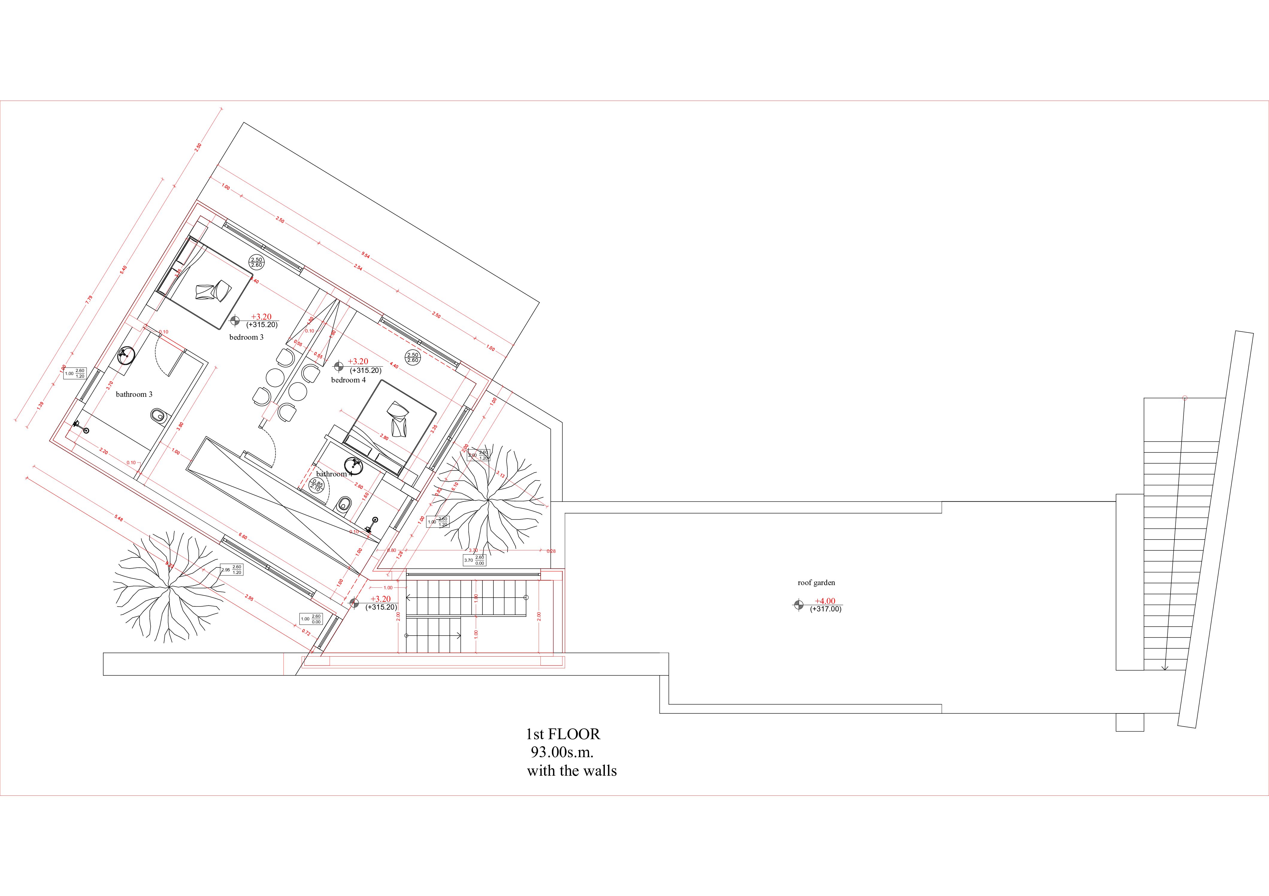
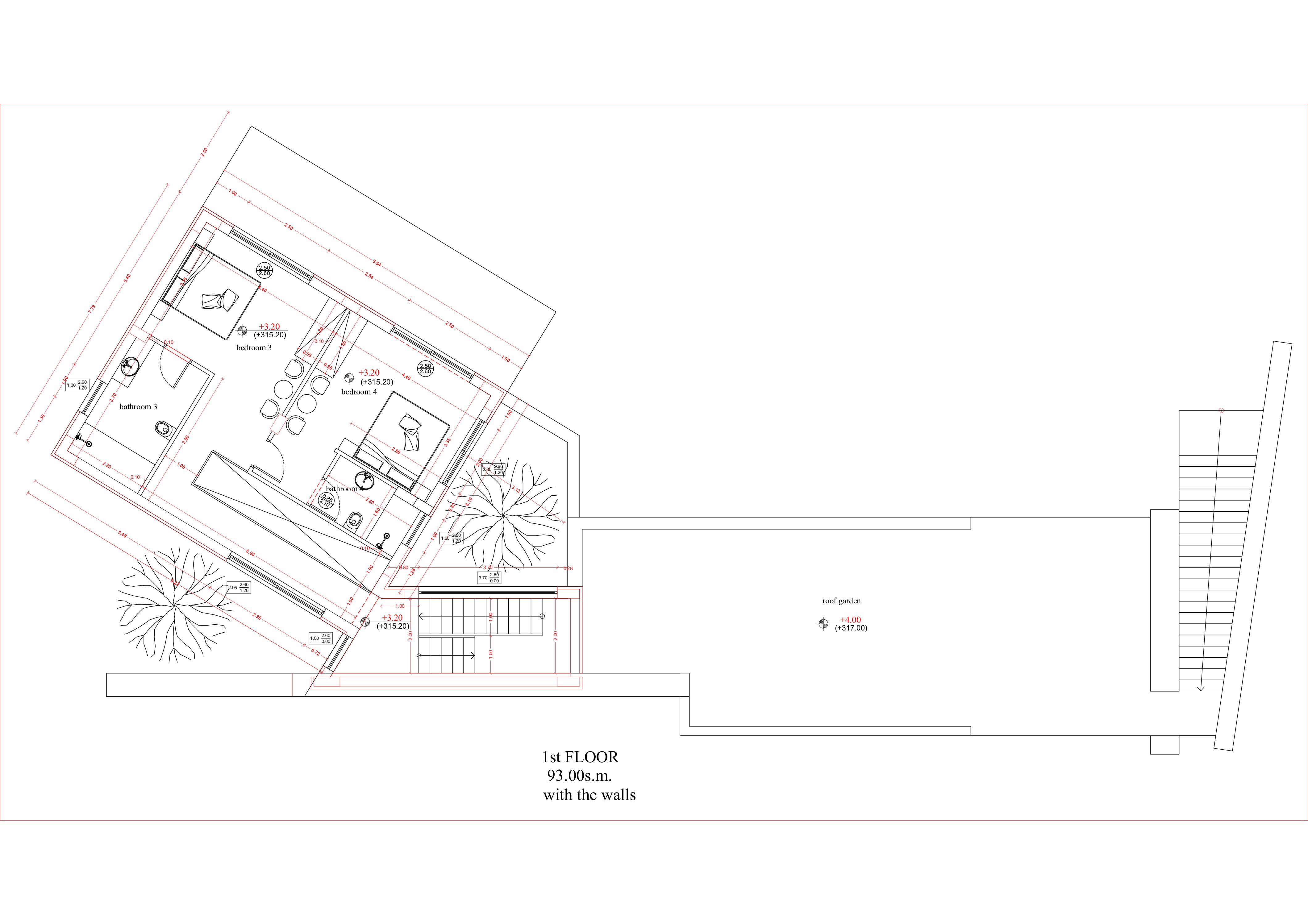
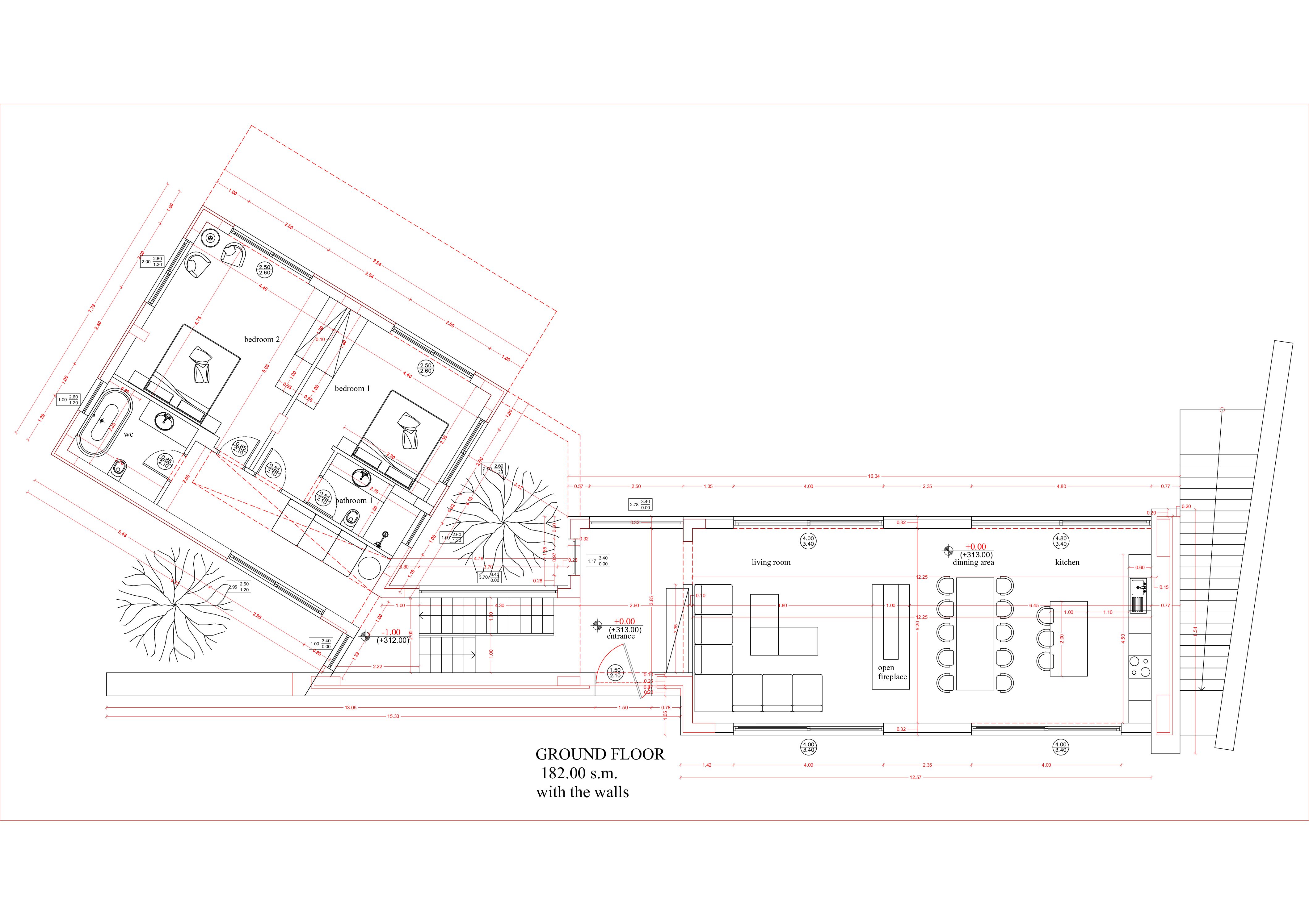
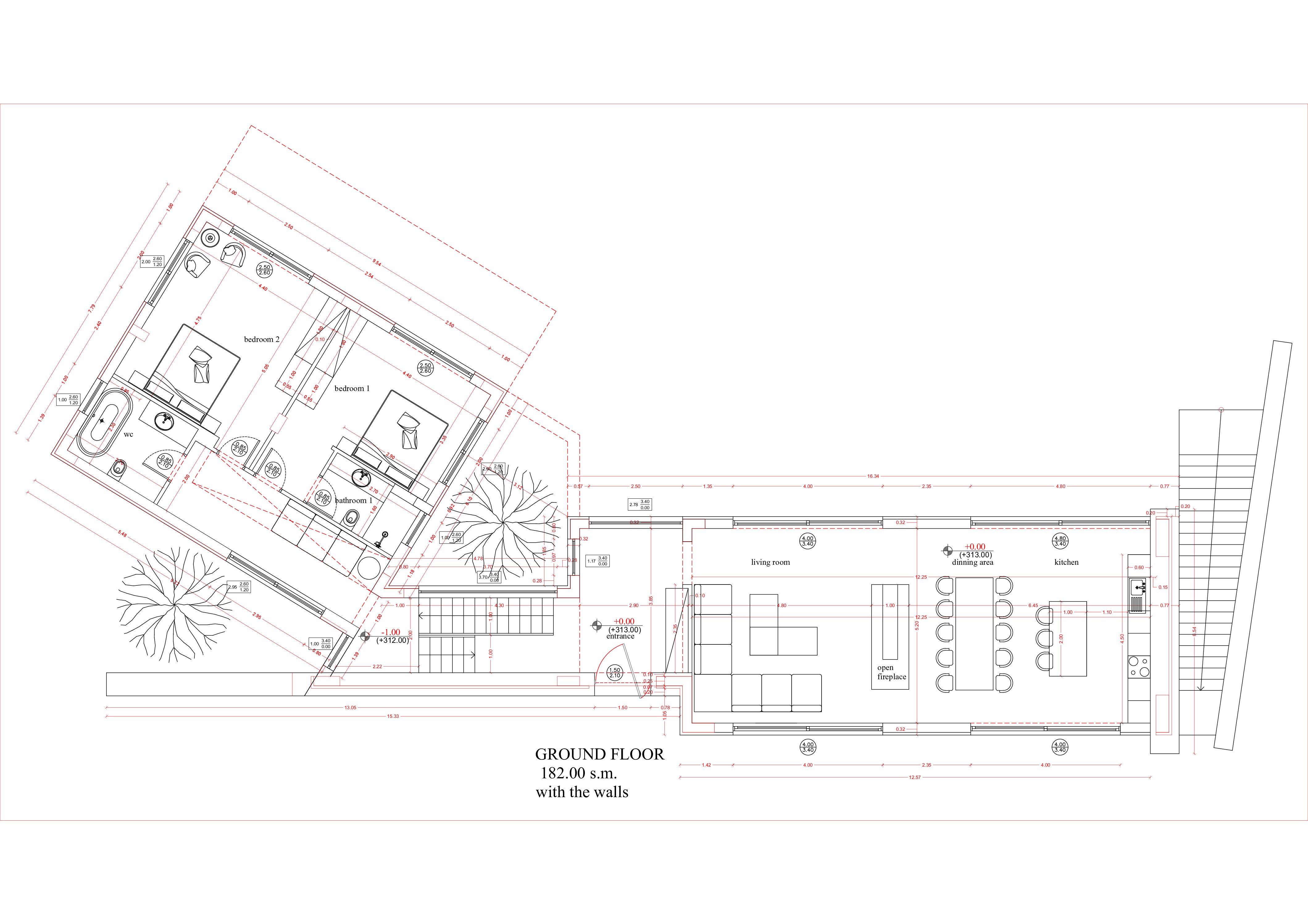
Villa (Project) Details (name of the project – “NEW EDEN”)
- Allowed buildable residential area of the villa – 196.47 m² (according to the issued building permit)
- Basement area (with walls included) – 102.3 m² additionally
- 3 floors (including the basement)
- 4 bedrooms
- 4 bathrooms
- Open-plan living and dining areas
- Basement floor with technical rooms and a private gym
- Swimming pool with the pool zones
- Designed outdoor areas:
- Barbeque zone
- Yoga and meditation platform in the shadow of cypresses
- Remote relaxation alcove
- Rooftop relaxation and viewing terrace
- 2 parking zones
- The house’s power supply system includes installation of solar panels and maximum energy independence
The villa’s territory and its ground floor immerses in the greenery of olive and cypress trees, the sea view opens from the 1st floor and rooftop terrace.
The architectural concept combines modern Mediterranean minimalism with natural materials, creating a timeless and elegant residence suitable for private use or a high-end investment.
Location & Distances
- Georgioupolis Beach – approx. 15 minutes by car
- Omprogialos (a small, secluded bay with crystal clear water on the eastern coast of Cape Drapanos, is also known as the “Octopus Bay”) – approx. 15 minutes by car
- Almyrida Beach – approx. 20 minutes by car
- Chania city center – approx. 45 minutes by car
- Chania International Airport – approx. 50 minutes by car
- Rethymno – approx. 45 minutes by car
This property offers a rare combination of large land size, mature olive and cypress trees garden, privacy, sea view and a premium residential environment, making it one of the most attractive opportunities in the Likotinara–Apokoronas area.































